Moin Jobfinder

Wochenmarktplatz wird erneuert

Markt wird vorübergehend verlegt

© Görke

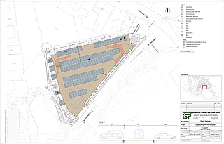
Auf dem neu gestalteten Wochenmarktplatz werden künftig 111 Parkplätze zur Verfügung stehen. © Stadt Itzehoe/Ingenieurgesellschaft Siebert & Partner

Itzehoe (bg) – Schon seit längerem ist bekannt, dass die Stromversorgung auf dem Wochenmarktplatz an der Schumacherallee marode ist. Nur dank provisorischer Ersatzstromanalgen konnte der Betrieb des Marktes seit dem letzten Frühjahr aufrecht erhalten werden.

Voraussichtlich ab Juli soll der Marktplatz nun umfassend modernisiert werden. „Die Angebotsfrist wurde verlängert, sodass die Auftragsvergabe etwas später als zunächst vorgesehen erfolgen wird“, sagte Björn Dethlfs, Pressesprecher der Stadt Itzehoe, auf Anfrage. „Das soll am 28. Juni sein. Wenn dies passiert ist, wird es eine genaue Terminplanung geben. Darüber werden wir rechtzeitig informieren.“ Bis zur Fertigstellung Ende des Jahres wird der Wochenmarkt auf den Meiereiparkplatz umziehen.

Auch das Oktoberfest, das traditionell auf dem Wochenmarktplatz stattfindet, wird in diesem Jahr verlegt – findet aber wie gewohnt statt.

Im Rahmen der Umbauten sollen unter anderem die Entwässerung, die Stromversorgung und die Beleuchtung erneuert werden. Auch die Möglichkeit, E-Ladesäulen zu installieren, wird geprüft.
In Absprache mit den Marktbeschickern wird der neu gestaltete Platz in der Mitte frei von Lampenmasten und Bordsteinen sein. Für die Stromanschlüsse sind Senkelektranten vorgesehen. „So bleibt die Fläche variabel für Stellflächen und lässt sich optimal für Veranstaltungen nutzen“, erklärt Andrea Stegmann, Leiterin der Tiefbauabteilung der Stadt Itzehoe.

Für die neue Pflasterung sind Steine in der Farbe Terra-Braun vorgesehen; die Parkflächen werden die Farbe Terra-Anthrazit bekommen.

Um die Parkplätze an die größer werdenden Autos anzupassen, werden die Stellflächen neu verteilt. Statt wie bisher 122 Parkplätze wird es dann 111 Stellflächen geben sowie vier Behindertenparkplätze. Auch das Ein- und Ausparken soll komfortabler werden. Der neu geschaffene Parkplatz wird dann bewirtschaftet werden – die Parkscheinautomaten werden im Rahmen des Umbaus gleich mit aufgestellt.
Für den gesamten Umbau sind Kosten in Höhe von 860 000 Euro veranschlagt.

zu den aktuellen Ausgaben

Wir möchten Sie darauf hinweisen, dass bei der Aktivierung des Magazins eine Verbindung zum Anbieter Yumpu aufgebaut wird und Daten übermittelt werden.

aktuelle Beilagen

Veranstaltungen